Onder optie
Verkoopprocedure Zuiderveld Oost

Verkoopprocedure Zuiderveld Oost

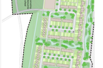
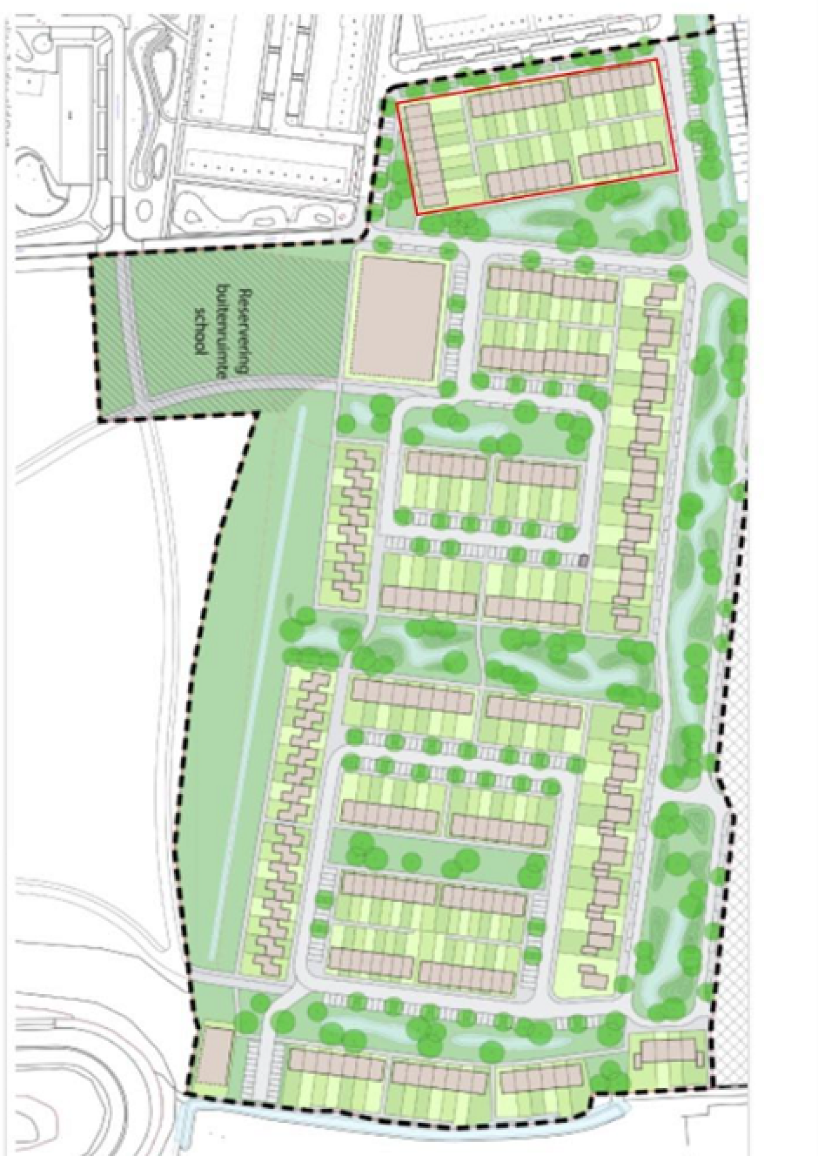
De gemeente Nijmegen is voornemens om de locatie Zuiderveld Oost, gelegen in het gebied Zuiderveld in de Waalsprong, in ontwikkeling te nemen. De gemeente heeft hiervoor een openbare tender uitgezet op Mercell waarin partijen is gevraagd daarvoor een bod uit te brengen.  

De opgave van de locatie Zuiderveld Oost betreft de verkoop van 5.037 m2 grond ten behoeve van het ontwerp, de ontwikkeling en realisatie van 40 woningen conform de tenderdocumenten Verkoop perceel grond gelegen in Zuiderveld Oost te Nijmegen. Voor de tenderdocumenten wordt verwezen naar de link in Mercell.

 

 

 

Informatie
  • Adres:
    Zuiderveld Oost te Nijmegen

Contactgegevens

  • Organisatie: Gemeente Nijmegen
  • Contactpersoon: Dhr. Raoul Walk
  • E-mailadres: r.walk@nijmegen.nl
  • Telefoon: 0622514966

Disclaimer
De gemeente besteedt de uiterste zorg aan het zo actueel, toegankelijk, correct en compleet mogelijk maken en houden van de website. Komt u desondanks toch iets tegen dat niet correct is of verouderd is? Neem dan contact op met de redactie via het e-mail adres: kavelsvastgoed@nijmegen.nl.