Te koop
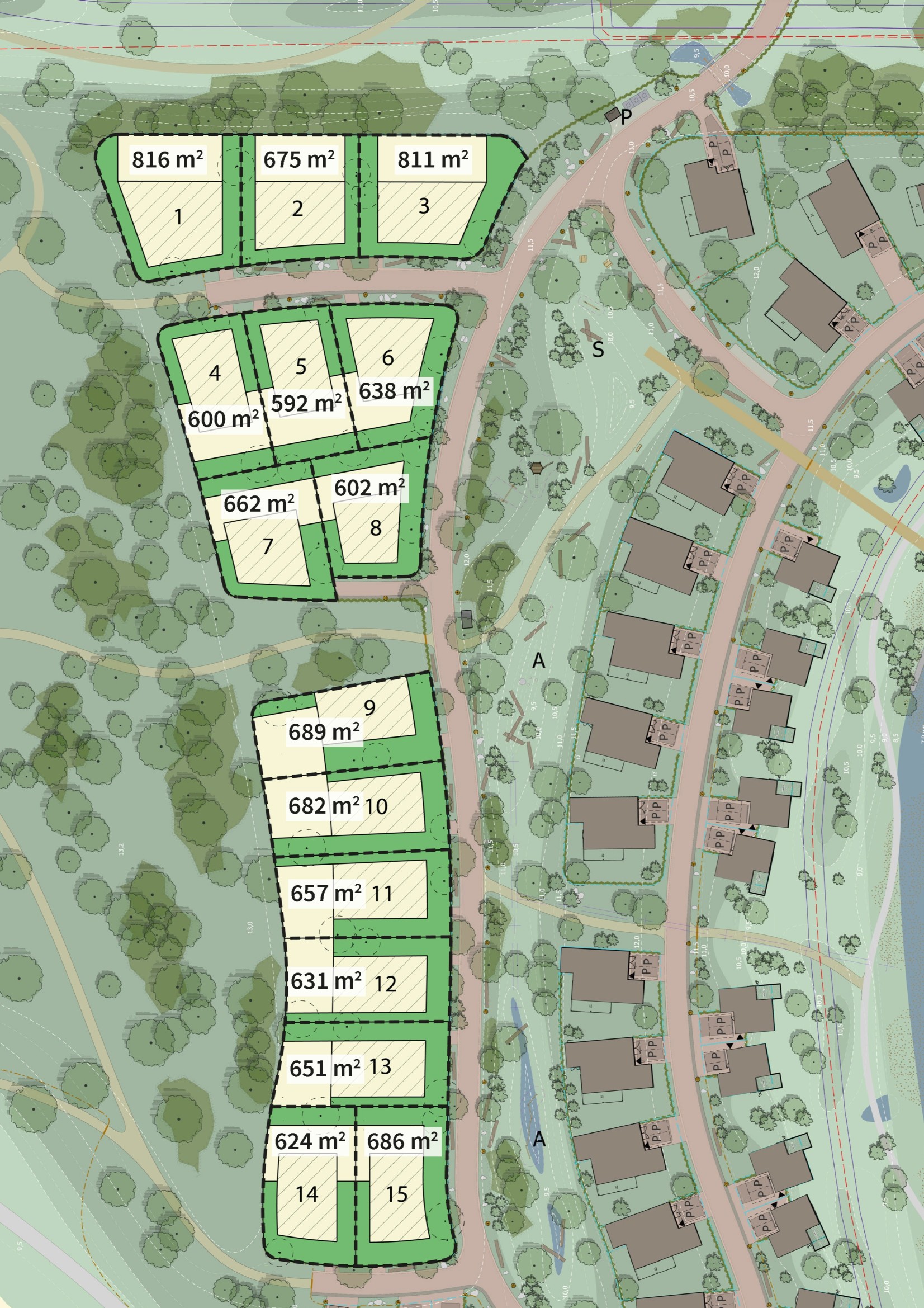
Kavel 12 Het Zandse Hoogland
€ 465.000 k.k.

Kavel 12 Het Zandse Hoogland

Kavel 12 ligt in het woongebied Het Zandse Hoogland en is circa 631 m² groot. De kavel heeft in deze landschappelijke zone een unieke ligging tussen de Lentse- en de Zandse plas in het natuur- en recreatiegebied De Waaijer. 

Deze bijzondere plek is gelegen in het landschap ten oosten van de Prins Mauritssingel en de Pathé-bioscoop. Wonen in landschapspark de Waaijer betekent ruimte voor vrij wonen in een landschappelijke setting. Het ‘Zandse Hoogland’ wordt een aantrekkelijke plek die herkenbaar is door de unieke landschappelijke setting met een markant hoogteverschil naar de omgeving. 

De te bouwen woningen nemen een bescheiden plek in en zijn te gast in het landschap. U krijgt bij het ontwerpen van uw woonhuis, binnen de kaders van het beeldkwaliteitplan en de uitgangspunten uit het kavelpaspoort alle ruimte bij de uitwerking. Om ervoor te zorgen dat de woningen aansluiten bij elkaar, het landschap en de bebouwing in de omgeving, is hiervoor een aantal spelregels en randvoorwaarden opgesteld. De belangrijkste regels zijn samengevat in het kavelpaspoort.

 U kunt zich uitsluitend (digitaal) inschrijven voor de loting, door middel van het invullen van het inschrijfformulier op de website onder aan deze pagina. De inschrijvingsperiode start op 17 december 2025 om circa 17.00 uur en sluit op 19 januari 2026 om 17.00 uur. Na ontvangst van het inschrijfformulier ontvangt u per email een bevestiging van ontvangst. 

De details over de inschrijvingsprocedure en andere noodzakelijke documenten en informatie kunt u terugvinden als bijlagen onderaan deze pagina. 

Informatie
  • Prijs: € 465.000 k.k. incl 21% btw
  • Prijs geldig tot: 01-07-2026
  • Bestemming: Wonen
  • Perceelgrootte: 631 m²
Download documenten en bijlagen (18.95mb)

Contactgegevens

  • Organisatie: Gemeente Nijmegen
  • Contactpersoon: Mw. Cindy Rutten
  • E-mailadres: kavelwinkel@nijmegen.nl
  • Telefoon: 0652780895

Inschrijven

Persoonlijke gegevens inschrijver(s)

Inschrijver

Echtgenoot / Partner

Ik wil me inschrijven voor een kavel Kavel 12 Het Zandse Hoogland.
Mijn voorkeur gaat uit naar kavelnummer(s):

Ik geef hiermee toestemming dat dit inschrijfformulier verstrekt mag worden aan de betreffende notaris die de akte voorbereidt, in het geval er een wederzijds getekende koopovereenkomst aan ten grondslag ligt.

Ondertekening
Handtekening
Downloaden PDF

PDF Kavel 12 Het Zandse Hoogland

Download alle bijlagen

Bijbehorende documenten (18.95mb)


Disclaimer
De gemeente besteedt de uiterste zorg aan het zo actueel, toegankelijk, correct en compleet mogelijk maken en houden van de website. Komt u desondanks toch iets tegen dat niet correct is of verouderd is? Neem dan contact op met de redactie via het e-mail adres: kavelsvastgoed@nijmegen.nl.